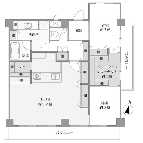
永福の静謐を纏う、上質なる邸宅~ひろびろ88㎡超2LDK+WIC☆南東角 京王井の頭線「西永福」または「永福町」駅からほど近く、落ち着いた街並みに調和する「パレス永福」。 気品漂う外観と洗練された共用空間、そして上質な設備仕様が、日常に豊かな彩りを添えます。 窓外に広がる緑と閑静な住環境は、都心に寄り添いながらも穏やかな時を過ごせる特別な舞台。 ここに住まうことは、日常を格上げする贅沢そのものです。 周辺にはスーパーや商店街、公園も揃い、利便性と自然を同時に享受できる理想の住まいです。 ■アクセス ・京王井の頭線「西永福」駅徒歩6分 ・渋谷まで12分(永福町駅にて急行乗り換え) ■2019年こだわりのフルリフォーム ・約22㎡のゆったりLDK ・無垢フローリング仕上げ ・フルフラットのオープンキッチン ・大型ウォークスルークローゼット、壁面収納、パントリー等収納豊富 ■管理体制良好 ・東急コミュニティー管理 ・敷地内駐車場あり ■周辺環境良好 ・駅付近に商店街 ・スーパー至近 ・和田堀公園約150m

マンション名
パレス永福
住所
東京都杉並区永福四丁目21-14
ペット飼育
不可
向き
南向き
間取
2SLDK
所有権タイプ
所有権
築年数
1980年12月(築45年)
修繕積立金
2万9610円
管理費
3万4560円
その他月額費
現況
空室
引渡時期
即時
用途地域
準住居地域
管理体制
巡回
管理形態
総戸数
17戸
建物構造
RC(鉄筋コンクリート造)
面積計測方式
壁芯
駐車場在否
空有り
駐車場月額
地上階層
所在階
4階
専有面積
88.38㎡
小学校区域
永福小学校
中学校区域
大宮中学校
分譲会社
山京ビルディング
施工会社名
太平興業
設計会社
管理会社名
東急コミュニティー
地図(クリックで拡大)
「不動産売買で、お客様にときめきを」
© 不動産仲介、買取の株式会社ランディックス

東京都目黒区下目黒1丁目2-14 Landix目黒ビル
Tel: 03-6380-9801